尼亚加拉大瀑布地区中文门户网|圣凯瑟琳|布鲁克大学|尼亚加拉学院|房地产投资-NiagaraDIY.com

 找回密码
 立即注册
打印 上一主题 下一主题

[地产资讯] 瀑布新公寓即将预售,30多万即能拥有一套自己在瀑布的度...

[复制链接]
跳转到指定楼层
楼主
Tonyzhang 发表于 2019-6-5 03:11:19 | 只看该作者 回帖奖励 |倒序浏览 |阅读模式
     查看: 8747   |   回复: 0
瀑布地区近几年活跃的房屋市场不仅体现在独立屋上,公寓楼也是逐渐多了起来。近期,一栋地理位置优越,价格公道的10层公寓楼即将开始预售,30多万即可拥有一套在瀑布的温馨居所。
公寓位于尼亚加拉瀑布新区,距离大瀑布6-8分钟车程
距离YMCA仅1分钟,距离瀑布新医院3分钟车程
即将进驻Niagara Square购物中心的Costco也近在咫尺
高质量用材,现代设计,符合旅游,养老,和青年人的不同需求
FEATURES AND FINISHES
  • ceiling height in principal rooms is 9’*
  • solid core entry door with privacy viewer
  • smooth drywall painted ceilings in all areas
  • white painted interior walls
  • 4” baseboard and 2 1/2” door casing
  • slab style bathroom, closet and washer/dryer room doors with brushed chrome lever hardware
  • vinyl coated wire shelving in all closets
  • stacked washer and dryer individually controlled heating and air conditioning system

Kitchen
  • custom designed kitchen cabinetry in a selection of door finishes***
  • quartz surface countertop***
  • ceramic tile backsplash***
  • single bowl under-mount stainless steel sink
  • single lever deck mounted faucet set with pullout spray
  • freestanding fridge, freestanding electric stove, dishwasher, and over-the-range microwave hood fan combination*

Bathrooms
  • custom designed bathroom cabinetry in a selection of door finishes***
  • full vanity width mirror
  • quartz surface countertop***
  • drop-in porcelain vanity sink*
  • deep soaker bathtub*
  • ceramic wall tile*** on all wet wall surrounds
  • white bathroom fixtures
  • pressure balanced mixing valve in the shower
  • exhaust fan vented to the exterior

Floor Coverings
  • pre-finished laminate floors*** throughout with the exception of the bedroom(s), bathroom(s) and washer/dryer closet
  • broadloom*** throughout the bedroom(s)
  • ceramic floor tile*** in the bathroom(s)
  • white ceramic floor tile in washer/dryer closet

Safety and Security
  • pre-wired for a personally encoded suite intrusion alarm system
  • smoke, carbon monoxide and heat detectors provided in all suites

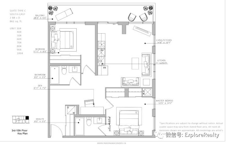
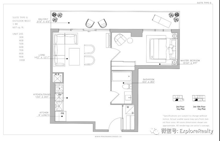
1居,2居不同户型,供您选择:
公寓预计2020年底--2021年初交付使用。
重要的事情说三遍:
6.30号以前和我们联系注册购买,还有更多优惠!
6.30号以前和我们联系注册购买,还有更多优惠!
6.30号以前和我们联系注册购买,还有更多优惠!

更多信息请拨打:905-323-7075
通过微信扫码就能浏览多伦多--Niagara瀑布地区海量真房源啦.中文界面!及时更新!国内的朋友也能看!还有专业经纪答疑解惑!!!

操作很简单:直接扫码进入!


联系时请说是在NiagaraDIY.com看到的,谢谢!
回复 论坛版权

使用道具 举报

广告位L4招商中
(点 击 查 看 详 情)
尼亚加拉大瀑布地区中文门户网NiagaraDIY.com是一个集新闻、房地产、娱乐、旅游、生活为一体的综合性网站。本网站不仅致力于为Niagara Falls, St. Catharines, Niagara-On-The-Lake, Fort Erie, Welland, Grimsby, Lincoln, West Lincoln, Port Colborne, Wainfleet, Thorold, Pelham等整个尼亚加拉地区的华人朋友提供完善的社区服务,为中国投资者及海外华人提供最新最全的尼亚加拉大瀑布地区房地产投资,房源信息和房价走势,还为众多前往大瀑布的中国旅游者提供全面的景点和住宿资讯。同时,我们特别为布鲁克大学(Brock University)和尼亚加拉学院(Niagara College)的中国留学生朋友们开设了租房版块、美食版块、顺风搭车和二手交易版块,让同学们的海外留学生活(吃/住/行)更加方便!舒适!多彩!
投资型房源推荐,房产经纪人推荐,装修公司推荐,房屋贷款经纪人推荐,中国人创业投资

切换至手机版|尼亚加拉大瀑布地区中文门户网 NiagaraDIY.com

GMT+8, 2025-12-15 23:48 , Processed in 0.081901 second(s), 25 queries .

Advertise with us

© www.niagaradiy.com






快速回复 返回顶部 返回列表