尼亚加拉大瀑布地区中文门户网|圣凯瑟琳|布鲁克大学|尼亚加拉学院|房地产投资-NiagaraDIY.com

 找回密码
 立即注册
打印 上一主题 下一主题

[创业投资] VVVIP预售!瀑布地区河景公寓,25万起!

[复制链接]
跳转到指定楼层
楼主
Tonyzhang 发表于 2020-10-17 01:33:11 | 只看该作者 回帖奖励 |倒序浏览 |阅读模式
     查看: 9181   |   回复: 0
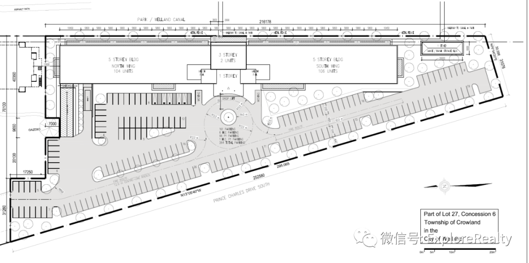
​瀑布地区河景公寓,25万起!论性价比,无出其右!位于尼亚加拉瀑布地区Welland运河河道,奢华公寓,品质保证,话不多说,先来体验一下宣传片吧。
该公寓位于Welland运河旁,距离闻名世界的尼亚加拉瀑布仅26分钟车程。距离尼亚加拉学院8分钟,当地医院隔河可观。
Upper Vista也始终以得天独厚选址能力,为住户赢得最好的居住环境,景色与环境更是百里挑一
其上一个项目 Upper Vista Niagara,也赢得了客户的一致好评
瀑布地区的整体生活环境更是有口皆碑,作为加拿大第二大养老目的地,休闲,娱乐,养生,是本地居民关注的一大重点
最使人惊艳的,则是无出其右的高性价比,25万起卖!这一价格不论是在多伦多还是瀑布,都具有绝对的吸引力。
该公寓为5层设计,共计214个单元,预计2023/2024年交付。
灵活的付款周期让您能够从容准备首付款
2020年9月30日前注册,更有惊喜优惠等着您!
注册方式:
  • 发送邮件至tonyz@remax-gc.com, title注明upper vista welland,即可获得户型图及注册文件。
  • 添加微信TonyZ1985,注明upper vista welland,即可获得户型图及注册文件。
  • 致电289-990-5239,人工注册



不论您是考虑旅游度假,休闲养老,或者投资理财,这一公寓都给您留有充分的操作空间,专业的物业管理团队,也会为您解决远距离维护的后顾之忧。

更多信息请致电挂牌经纪Tony Zhang:289-990-5239








通过微信扫码就能浏览多伦多--Niagara瀑布地区海量真房源啦.中文界面!及时更新!国内的朋友也能看!还有专业经纪答疑解惑!!!







联系时请说是在NiagaraDIY.com看到的,谢谢!
回复 论坛版权

使用道具 举报

广告位L4招商中
(点 击 查 看 详 情)
尼亚加拉大瀑布地区中文门户网NiagaraDIY.com是一个集新闻、房地产、娱乐、旅游、生活为一体的综合性网站。本网站不仅致力于为Niagara Falls, St. Catharines, Niagara-On-The-Lake, Fort Erie, Welland, Grimsby, Lincoln, West Lincoln, Port Colborne, Wainfleet, Thorold, Pelham等整个尼亚加拉地区的华人朋友提供完善的社区服务,为中国投资者及海外华人提供最新最全的尼亚加拉大瀑布地区房地产投资,房源信息和房价走势,还为众多前往大瀑布的中国旅游者提供全面的景点和住宿资讯。同时,我们特别为布鲁克大学(Brock University)和尼亚加拉学院(Niagara College)的中国留学生朋友们开设了租房版块、美食版块、顺风搭车和二手交易版块,让同学们的海外留学生活(吃/住/行)更加方便!舒适!多彩!
投资型房源推荐,房产经纪人推荐,装修公司推荐,房屋贷款经纪人推荐,中国人创业投资

切换至手机版|尼亚加拉大瀑布地区中文门户网 NiagaraDIY.com

GMT+8, 2025-12-30 14:50 , Processed in 0.055904 second(s), 25 queries .

Advertise with us

© www.niagaradiy.com






快速回复 返回顶部 返回列表